- Woodland Park - Country RV Chippewa Falls, Wisconsin

Timber Ridge - GALLERY (PICTURES of SOLD & CUSTOM Units)

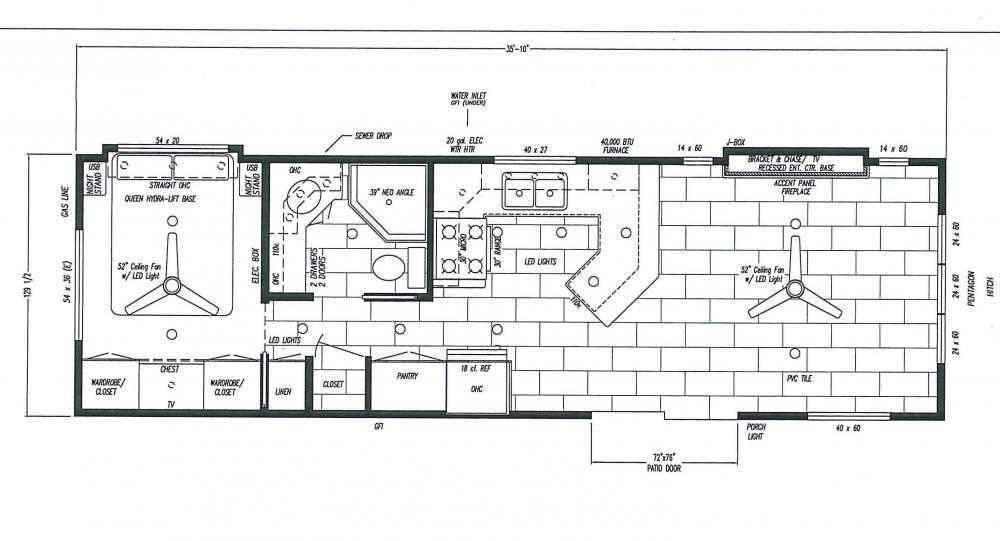
nosnetsirhc #6267 2023 Woodland Park TR-204 (Kennedy) Window OH of Bed

2023 Woodland Park TR-204 (Kennedy) Window OH of Bed


(#6267 Nosnetsirhc) - CUSTOM BUILT ORDERED UNIT - SOLD 

CALL TODAY TO SET AN APPOITMENT TO ORDER YOUR CUSTOM BUILD FOREVER CAMPER TODAY!

CONSTRUCTION :
------------------
1 - FLOORING OPTIONS LR KIT HALL BATH PER SQ FT
400 - PVC PLANK UPGRADE COARSE 595 MAIN FLOOR AND BEDROOM
1 - WALLBOARD COOPER CREAM
1 - CEILING BOARD MANSION FROST
1 - REAR AND PATIO DOOR AND WINDOW COLOR WHITE
1 - REAR AND PATIO DOOR AND WINDOW NO GRIDS
1 - 6' THERMOPANE VINYL PATIO DOOR WITH INTERNAL BLIND
1 - VINYL LOW-E THERMOPANE WINDOWS ALL
1 - EXTRA WINDOW WITH FAUX WOOD BLIND
1 - 54X20 WINDOW ABOVE BED
1 - PENTAGON WINDOW
1 - INSULATION R13 WALLS R21 CEILING
1 - GAS LINE REAR ONLY
1 - ALUMINUM UNDERBELLY
1 - DETACHABLE HITCH
1 - HITCH ORIENTATION STANDARD
1 - 3RD AXLE
1 - REAR DOOR DELETE
1 - REMOVE DOOR SIDE BUMP OUT
1 - WIDEN KITCHEN PANTRY SEE PRINT DOUBLE DOORS
1 - WIDEN HALL CLOSET SEE PRINT
1 - BEDROOM BUMP OUT ODS 

MILL & CABINET :
------------------
1 - CABINET COLOR IRISH CAF TRIM SLATE GRAY
1 - CABINET DOOR HARDWOOD CHAMFER SHAKER
1 - CABINET HARDWARE BLACK MATTE
1 - SELF CLOSING DRAWER GUIDES
1 - SOFT CLOSE DOOR HINGES
1 - COUNTERTOP STD KOPI SUSU
1 - 4" LAMINATE BACKSPLASH KITCHEN
1 - 4" LAMINATE BACKSPLASH BATH
1 - VINYL WINDOW SILLS THROUGHOUT
1 - FULL DEPTH CABINET OVER FRIDGE
1 - FINISH TOPS ON KITCHEN OHCS
1 - CHAIR RAIL THROUGHOUT
1 - WINDOW TRIM 1 3/4"
1 - CROWN MOLDING CABINETS
1 - INTERIOR BASE MOLDING 3"
1 - BEDROOM STRAIGHT OHC
1 - BEDROOM CHEST OF DRAWERS
1 - VALANCE ABOVE CHEST
1 - BEDROOM WARDROBE
2 - BUILT IN NIGHTSTANDS W/ DOORS
1 - RECESSED ENT CENTER BASE W/ ACCENT WALL
1 - WALL ACCENT COLOR KNOT GRAYSTONE
1 - DOUBLE DOORS ON HALL PANTRY
1 - 18" LINEN CABINET HALLWAY SEE PRINT 

PLUMBING :
------------
1 - LAV FAUCET BLACK MATTE
1 - LAV SINK PORCELAIN
1 - KITCHEN SINK STAINLESS STEEL DEEP
1 - KITCHEN FAUCET SINGLE HANDLE PULL DOWN BLACK MATTE
1 - NEO ANGLE SHOWER 39" W/ CLEAR GLASS DOOR
1 - SHOWER HEAD FIXED MATTE BLACK
1 - TOILET SWEATLESS ELONGATED
1 - WATER SHUT OFF VALVES STANDARD FIXTURES
 

ELECTRICAL :
-------------
1 - BATH POWER VENT W/ LIGHT
2 - CEILING FANS BEDROOM AND LIVING ROOM
1 - 50 AMP SERVICE
1 - 110V INTERIOR OUTLET EXTRA BATHROOM TOTAL 2
2 - TV / CABLE JACKS
2 - EXTERIOR GFI RECEPTS
2 - USB RECEPTS
3 - LED LIGHTS W/ DIMMER BOTTOM BR OHC
1 - LED LIGHTS BEDROOM VALANCE
1 - LED CEILING LIGHTS
1 - PORCH LIGHT DARK BRONZE
1 - EXTRA PORCH LIGHT REAR SIDE PATIO DOOR
1 - TV BRACKET FULL MOTION WALL MOUNT 32"–50" UP TO 80 LB EA
1 - CO DETECTOR US
1 - LP GAS DETECTOR US
1 - TV PREP W/ WIRE CHASE LR AT E/C 

APPLIANCE :
-------------
1 - ELECTRIC FIREPLACE DIMPLEX W/ REMOTE
1 - FURNACE 40,000 BTU UNDERCOUNTER
1 - A/C BOOT 12-3 WIRE W/ DBL 20 AMP BREAKER W/ J-BOX
DO NOT CUT HOLE FOR A/C BOOT
INSTALL J-BOX OFF DOOR SIDE AT E/C AREA
1 - REFRIGERATOR 18 CF FROST FREE BLACK
1 - MICROWAVE SPACEMAKER 30" BLACK
1 - MICROWAVE VENT THRU ROOF
1 - DELUXE GAS RANGE W/ ELECTRIC IGNITION BLACK
1 - WATER HEATER ELECTRIC 20 GAL W/ INSULATED DOOR
1 - WATER HEATER LIGHTED SWITCH

FURNITURE :
-------------
1 - DECOR COLOR CEMENT
3 - BAR STOOLS NO BACK STD DELETE
1 - HYDRA LIFT QUEEN BASE ONLY

INTERIOR FURNISHINGS :
---------------------------
1 - DRAPE SIDE PANEL ACCENT
1 - FAUX WOOD BLIND WHITE
1 - NO DRAPES OR RODS LIVING ROOM BEDROOM ONLY

EXTERIOR FURNISHINGS :
---------------------------
1 - VINYL SIDING RESIDENTIAL HARVARD SLATE
1 - ARCH SHINGLES LIFETIME WARRANTY DUAL BLACK
1 - WINTERGUARD ROOF UNDERLAYMENT 

nosnetsirhc #6267