- Woodland Park - Country RV Chippewa Falls, Wisconsin

Timber Ridge - GALLERY (PICTURES of SOLD & CUSTOM Units)

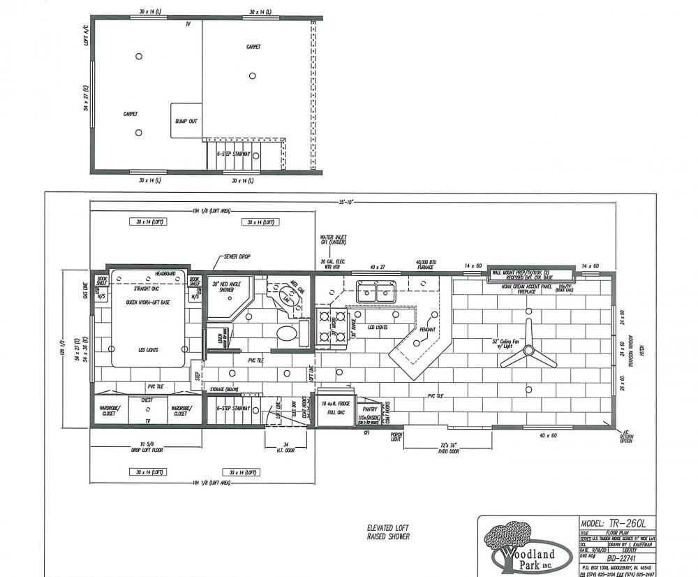
Datsgyrt 2020 Woodland Park TR-260L (Liberty) with Navy Interior

2020 Woodland Park TR-260L (Liberty) with Navy Interior


(#6566 Datsgyrt) - CUSTOM BUILT ORDERED UNIT - SOLD  

CALL TODAY TO SET AN APPOITMENT TO ORDER YOUR CUSTOM BUILD FOREVER CAMPER TODAY!

CONSTRUCTION :
------------------
1 – CARPET IN LOFT
1 – CARPET PLUSH GRAVEL
1 – FLOORING OPTIONS FOR LR, KIT, HALL, BATH (PER SQ FT)
1 – TILE PVC CRETE (112) IN BEDROOM ALSO
1 – WALLBOARD COOPER CREAM
1 – CEILING BOARD ADOBE FROST
1 – DOOR (REAR & PATIO) & WINDOW COLOR WHITE
1 – DOOR (REAR & PATIO) & WINDOW NO GRIDS
1 – DOOR REAR HOUSE TYPE FIBERGLASS W/ STORM & WINDOW
1 – INTERNAL BLIND FOR REAR DOOR (NO GRIDS)
1 – DOOR PATIO THERMOPANE VINYL 6'
1 – WINDOW VINYL LOW-E THERMOPANE (ALL)
1 – WINDOW TRANSOM
1 – INSULATION (R13 WALLS / R21 CEILING)
1 – LOFT FLOOR 2X6 FRONT
1 – LOFT RAISED SHOWER HEADWELL
1 – LOFT ELEVATED (MAY REQUIRE SPECIAL FRT)
16 – LOWER FASCIA (PER FT) DOORSIDE
1 – GAS LINE TO REAR ONLY
1 – UNDERBELLY ALUMINUM
1 – HITCH DETACHABLE
1 – HITCH ORIENTATION STD
1 – AXLE 3RD
1 – BEDROOM BUMP OUT - ODS 

MILL & CABINET :
------------------
1 – CABINET COLOR IRISH CAFÉ (TRIM IN IRISH CAFÉ)
1 – ONE ADDITIONAL CABINET COLOR OR
1 – CABINET DOOR HARDWOOD SHAKER STYLE
1 – CABINET HARDWARE COLOR BLACK MATTE
1 – CABINET DRAWER GUIDES SELF CLOSING
1 – CABINET DOOR WITH SOFT CLOSING HINGES
1 – COUNTERTOP UPGRADE WHITE DRIFTWOOD
1 – BACKSPLASH UPGRADE SUBWAY TILE IN KITCHEN BLUE BONNET
1 – BACKSPLASH LAMINATE 4" IN BATH
1 – WINDOW SILLS VINYL THRU OUT
1 – CABINET FINISH TOPS ON OHC'S
1 – CABINET KITCHEN FULL DEPTH CAB OVER FRIDGE
1 – CHAIR RAIL THRU OUT
1 – TRIM AROUND ALL WINDOWS 1 3/4"
1 – MOLDING CROWN AROUND CABINETS
KITCHEN BASE CABINETS – NAVY
1 – MOLDING INTERIOR BASE 3
1 – CEILING BEAMS W/MATCHING WOOD (COLOR: NAVY)
1 – CABINET BEDROOM STRAIGHT OHC
1 – CABINET BEDROOM BOOK SHELVES ABOVE NIGHTSTAND
1 – CABINET BEDROOM CHEST OF DRAWERS
1 – VALANCE ABOVE CHEST
1 – CABINET BEDROOM WARDROBE(S)
1 – NIGHTSTANDS BUILT IN W/ DOOR (2)
1 – MANTLE TOP FOR ENTERTAINMENT CENTER IN CAB (COLOR: IRISH CAFÉ)
1 – DOOR ACCESS UNDER STAIRWELL
1 – CABINET RECESSED ENT CENTER BASE W/ ACCENT WALL
1 – WALL ACCENT COLOR NOAH CREAM
1 – TOWEL HOOKS (INSTALL ON PANTRY AT PATIO DOOR)
1 – LOFT RAILING COLONIAL SPINDLES
1 – EXTEND BAR COUNTERTOP 8" AT END FOR MORE SEATING
1 – TOP DOOR IN LINEN CLOSET MIRRORED 

PLUMBING :
------------
1 – FAUCET LAV BLACK MATTE
1 – SINK LAV PORCELAIN
1 – SINK KITCHEN STAINLESS STEEL DEEP
1 – FAUCET KITCHEN SINGLE HANDLE PULL DOWN BLACK MATTE
1 – SHOWER NEO 39" W/CLEAR GLASS DOOR
1 – SHOWER HEAD FIXED MATTE BLACK
1 – TOILET SWEATLESS ELONGATED
1 – VALVES WATER SHUT OFF FOR STANDARD FIXTURES
1 – SEPARATE TERMINATION FOR BLACK AND GRAY PIPES 

ELECTRICAL :
-------------
1 – POWER BATH VENT ON LOFT MODELS
1 – CEILING FAN (IN LIVING ROOM)
1 – AMP 50
2 – OUTLET INTERIOR 110V (EXTRA, INSIDE CABINET RIGHT HAND SIDE OF E/C)
1 – ADD RECEPT INSIDE PANTRY AT NORMAL KITCHEN RECEPT HEIGHT
1 – TV / CABLE JACKS (3 ON LOFT MODELS)
1 – TV JACK EXTRA (ADD TV JACK INSIDE RIGHT SIDE CAB. ON E/C BESIDE RECEPT)
1 – RECEPT GFI EXTERIOR (2)
2 – RECEPT USB
4 – DIMMER SWITCH PER LIGHT (LIVING ROOM LED, KITCHEN LED, PENDANT LIGHTS, BEDROOM LIGHT)
2 – LIGHT PENDANT BEADED MATTE BLACK (EA, OVER BAR)
1 – LIGHTS LED W/DIMMER (3) BOTTOM OF BR OHC
1 – LIGHTS LED IN BEDROOM VALANCE
1 – LIGHTS LED IN CEILING
1 – LIGHT PORCH DARK BRONZE
1 – TV BRACKET WALL MOUNT FULL MOTION 32"-50" (UP TO 80#)
1 – CO DETECTOR (US)
1 – LP GAS DETECTOR (US) 

APPLIANCE :
-------------
1 – FIREPLACE ELECTRIC DIMPLEX W/REMOTE
1 – FURNACE 40,000 BTU UNDERCOUNTER
1 – A/C BASEMENT HIGH OUTPUT COLEMAN
1 – A/C 5,000 BTU WALL UNIT IN LOFT
1 – REFRIGERATOR FROST FREE 18 C.F. BLACK
1 – MICROWAVE SPACEMAKER 30" BLACK
1 – MICROWAVE VENTLESS WITH CEILING EXHAUST FAN
1 – RANGE GAS DELUXE W/ ELECTRIC IGNITION BLACK
1 – WATER HEATER ELECTRIC 20 GAL W/ INSULATED DOOR
1 – WATER HEATER LIGHTED SWITCH

FURNITURE :
-------------
1 – DÉCOR COLOR OCEAN
3 – DELETE 3 STD. BAR STOOLS
1 – HYDRA LIFT QUEEN – BASE ONLY – NO MATTRESS

INTERIOR FURNISHINGS :
---------------------------
1 – DRAPE PATIO DOOR
1 – DRAPE SIDE PANEL ACCENT
1 – BLIND FAUX WOOD WHITE

EXTERIOR FURNISHINGS :
---------------------------
1 – SIDING VINYL UPGRADE MIDNIGHT SURF
1 – SHINGLES UPGRADE ARCH LIFETIME WARRANTY DRIFTWOOD
1 – WINTERGUARD ROOF UNDERLAYMENT 

Datsgyrt