- Woodland Park - Country RV Chippewa Falls, Wisconsin

Timber Ridge - GALLERY (PICTURES of SOLD & CUSTOM Units)

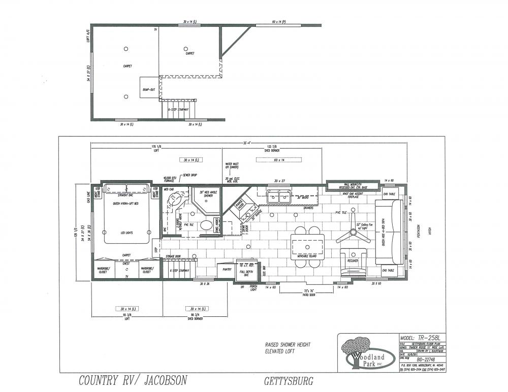
J # 6572 2021 Woodland Park TR-285L (Gettysburg) 1 Added Dormer over Kitchen Only

2021 Woodland Park TR-285L (Gettysburg) 1 Added Dormer over Kitchen Only


(#6572 Nosbocaj) - CUSTOM BUILT ORDERED UNIT - SOLD  

CALL TODAY TO SET AN APPOITMENT TO ORDER YOUR CUSTOM BUILD FOREVER CAMPER TODAY!


CONSTRUCTION :
------------------
1 - CARPET IN BEDROOM & LOFT
1 - CARPET PLUSH GRAVEL
1 - FLOORING OPTIONS FOR LR, KIT, HALL, BATH (PER SQ FT)
1 - TILE PVC CRETE (112)
1 - WALLBOARD COOPER CREAM
1 - CEILING BOARD ADOBE FROST
1 - DOOR (REAR & PATIO) & WINDOW COLOR WHITE
1 - DOOR (REAR & PATIO) & WINDOW NO GRIDS
1 - DOOR PATIO THERMOPANE VINYL 6'
1 - WINDOW VINYL LOW-E THERMOPANE (ALL)
2 - WINDOW EXTRA INCLUDING FAUX WOOD BLIND (EA)
1 - ADD 30X36 WINDOW AT BACK DOOR LOCATION
1 - ADD 14X60 WINDOW ON FRONT SEE PRINT FOR FRONT END WINDOW CONFIGURATION
1 - WINDOW PENTAGON
1 - INSULATION (R13 WALLS / R21 CEILING)
1 - LOFT FLOOR 2X6 FRONT
1 - LOFT RAISED SHOWER HEADWELL
1 - LOFT ELEVATED (MAY REQUIRE SPECIAL FRT)
15 - LOWER FASCIA (PER FT) DOORSIDE
1 – GAS LINE TO REAR ONLY
1 – UNDERBELLY ALUMINUM
1 – HITCH DETACHABLE
1 – HITCH ORIENTATION STD
1 – AXLE 3RD
1 – DELETE REAR DOOR
1 – RAISE FRONT WINDOWS UP 12"
1 – ADD BEDROOM BUMPOUT -- ODS
1 – ASSEMBLE 4 BAR STOOLS 

MILL & CABINET :
------------------
1 – CABINET COLOR SLATE GRAY
GRAY TRIM THROUGHOUT
1 – ONE ADDITIONAL CABINET COLOR
UPPER CABINETS IN KITCHEN AND BATH
BEDROOM CABINETS IN IRISH CAFÉ
ALL TRIMMED IN GRAY
1 – CABINET DOOR HARDWOOD SHAKER STYLE W/BEADBOARD INSERTS
1 – CABINET HARDWARE COLOR BLACK MATTE
1 – CABINET DRAWER GUIDES SELF CLOSING
1 – CABINET DOOR WITH SOFT CLOSING HINGES
1 – COUNTERTOP STD WHITE CARRARA
1 – BACKSPLASH UPGRADE IN KITCHEN TECH BOARD GRAY
2 – END TABLE SMOOTH FARMHOUSE IN GRAY
1 – BED PILLOWTOP HYDRA LIFT QUEEN
1 – BACKSPLASH LAMINATE 4" IN BATH
1 – WINDOW SILLS VINYL THRU OUT
1 – CABINET KITCHEN FULL DEPTH CAB OVER FRIDGE
1 – CABINET FINISH TOPS ON OHC'S
1 – CHAIR RAIL THRU OUT
1 – TRIM AROUND ALL WINDOWS 1 3/4"
1 – MOLDING CROWN AROUND CABINETS
1 – MOLDING INTERIOR BASE 3"
1 – CEILING BEAMS W/MATCHING WOOD, NOTE COLOR SLATE GRAY
1 – CABINET BEDROOM STRAIGHT OHC
1 – CABINET BEDROOM CHEST OF DRAWERS
1 – VALANCE ABOVE CHEST
1 – CABINET BEDROOM WARDROBE(S)
1 – NIGHTSTANDS BUILT IN W/ DOOR (2)
1 – MANTLE TOP FOR ENTERTAINMENT CENTER IN CAB, COLOR SLATE GRAY
1 – DOOR ACCESS UNDER STAIRWELL
1 – CABINET ACCESSED ENT CENTER BASE W/ ACCENT WALL
1 – WALL ACCENT COLOR KNOT OAK
1 – TOWEL HOOKS OVER TOP OF TOILET
1 – LOFT RAILING COLONIAL SPINDLES
1 – ENLARGE PANTRY TO LIBERTY SIZE 

PLUMBING :
------------
1 – FAUCET LAV BLACK MATTE
1 – SINK LAV PORCELAIN
1 – SINK KITCHEN STAINLESS STEEL DEEP
1 – FAUCET KITCHEN SINGLE HANDLE PULL DOWN BLACK MATTE
1 – SHOWER NEO 39" W/CLEAR GLASS DOOR
1 – SHOWER HEAD FIXED MATTE BLACK
1 – TOILET RESIDENTIAL
1 – VALVES WATER SHUT OFF FOR STANDARD FIXTURES 

ELECTRICAL :
-------------
1 – POWER BATH VENT ON LOFT MODELS
1 – CEILING FAN LIVING ROOM
1 – AMP 50
1 – TV / CABLE JACKS (3 ON LOFT MODELS)
1 – RECEPT GFI EXTERIOR (2)
2 – RECEPT USB
1 – DIMMER SWITCH PER LIGHT LIVING ROOM LED LIGHTS
1 – LIGHTS LED W/DIMMER (3) BOTTOM OF BR OHC
1 – LIGHTS LED IN BEDROOM VALANCE
1 – LIGHTS LED IN CEILING
1 – LIGHT PORCH DARK BRONZE
1 – TV BRACKET WALL MOUNT FULL MOTION 32"-50" UP TO 80#
1 – CO DETECTOR (US)
1 – LP GAS DETECTOR (US)

APPLIANCE :
-------------
1 – FIREPLACE ELECTRIC DIMPLEX W/REMOTE
1 – FURNACE 40,000 BTU UNDERCOUNTER
1 – A/C BASEMENT HIGH OUTPUT COLEMAN
1 – A/C 5,000 BTU WALL UNIT IN LOFT
1 – REFRIGERATOR FROST FREE 18 C.F. BLACK
1 – RANGE HOOD EURO STAINLESS STEEL
1 – MICROWAVE SPACEMAKER 30" BLACK
1 – MICROWAVE VENTLESS
1 – RANGE GAS DELUXE W/ ELECTRIC IGNITION BLACK
1 – WATER HEATER ELECTRIC 20 GAL W/ INSULATED DOOR
1 – WATER HEATER LIGHTED SWITCH 

FURNITURE :
-------------
1 – DECOR COLOR CEMENT
1 – SOFA SLEEPER QUEEN DAWSON (#3425)
1 – RECLINER WALL-A-WAY (#105R)
1 – KITCHEN ISLAND MOVABLE W/ 4 SWIVEL BAR STOOLS
2 – END TABLE SMOOTH FARMHOUSE IN GRAY
1 – BED PILLOWTOP HYDRA LIFT QUEEN

INTERIOR FURNISHINGS :
---------------------------
1 – DRAPE PATIO DOOR
1 – DRAPE SIDE PANEL ACCENT
1 – BLIND FAUX WOOD WHITE

EXTERIOR FURNISHINGS :
---------------------------
1 – SIDING VINYL UPGRADE GRANITE
1 – SHINGLES UPGRADE ARCH LIFETIME WARRANTY DUAL BLACK
1 – WINTERGUARD ROOF UNDERLAYMENT 

J # 6572