- Woodland Park - Country RV Chippewa Falls, Wisconsin

Timber Ridge - GALLERY (PICTURES of SOLD & CUSTOM Units)

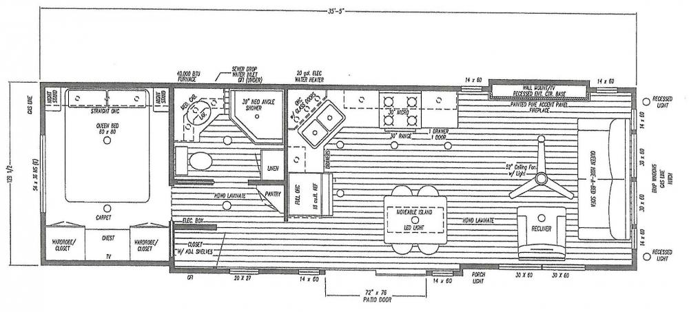
repraH/Stock #6086 2019 Woodland Park TR-203 (Acadia) with Deleted Divider Wall

2019 Woodland Park TR-203 (Acadia) with Deleted Divider Wall

Front Living/Den & Door Side Bump Out Shamrock Upgraded Siding & Dual Gray Shingles Open Concept Beam Ceiling in Gray Recliner (optional) Sofa (optional) Recessed Entertainment in Painted Pine Mantle Top & Fireplace Moveable Island in Graystone Cabinet Color w/Stools Storage in Island w/Adjustable Shelf Comfort Cafe Cabinets, Trimmed in Gray Adjustable Shelves (standard) Black Appliances (standard) Corner Cabinet with Lighting & Glass Doors Stainless Double Sink, High Rise Faucet (standard) Dimmer Switches Living Room & Kitchen Soft Closing Cabinet Doors Soft Closing Cabinet Drawers 18 Cubic Foot Frig Closet Adjustable Shelves Added Standard Bathroom Vanity Porcelain Sink, Single Handle Faucet (standard) Neo Angle Shower 39" with Glass Doors (standard) Linen Closet OH Cabinets with Lights (upgrade) Queen Bed His & Her Wardrobe with Chest of Drawers (standard)

(#6086 repraH/Stock) - CUSTOM BUILT ORDERED UNIT - SOLD 

CALL TODAY TO SET AN APPOITMENT TO ORDER YOUR CUSTOM BUILD FOREVER CAMPER TODAY!

CONSTRUCTION :
------------------
1 - DECOR STONINGTON
1 - COLOR FOR HARDWARE / PLUMBING & LIGHTING – NICKEL
1 - CARPET IN BEDROOM
1 - CARPET PLUSH ALMOND BARK
300 - LAMINATE HARDWOOD SEASIDE PINE DOCKSIDE (L6656)
1 - WALLBOARD TWAIN SULTANA
1 - CEILING BOARD ADOBE FROST
1 - DOOR (REAR & PATIO) & WINDOW COLOR WHITE
1 - DOOR (REAR & PATIO) & WINDOW NO GRIDS
1 - DOOR PATIO THERMOPANE VINYL 6'
1 - WINDOW VINYL LOW-E THERMOPANE (ALL)
1 - WINDOW EXTRA INCLUDING FAUX WOOD BLIND (EA)
1 - ADD 14X60 WINDOW BACKSIDE OF E/C
1 - WINDOW TRAPEZOID
1 - INSULATION (R13 WALLS / R21 CEILING)
1 - GAS LINE TO BOTH ENDS
1 - UNDERBELLY ALUMINUM
1 - HITCH DETACHABLE
1 - HITCH ORIENTATION STD
1 - AXLE 3RD
1 - DELETE ACCORDION DOOR W/ LIGHTED BEAM
1 - MOVE E/C FORWARD; ADD 14X60 WINDOW BACKSIDE OF E/C 

MILL & CABINET :
------------------
1 - CABINET COLOR COMFORT CAFÉ; ISLAND IN GRAYSTONE; UNIT TRIMMED IN GRAYSTONE THRU OUT
1 - CABINET DOOR HARDWOOD SHAKER STYLE
1 - CABINET DOOR WITH SOFT CLOSING HINGES
1 - COUNTERTOP STD LAMINATE KOPI SUSU
1 - BACKSPLASH LAMINATE 4" IN KITCHEN
1 - BACKSPLASH LAMINATE 4" IN BATH
1 - CABINET KITCHEN CORNER OHC W/ GLASS DOORS & SHELVES
1 - WINDOW SILLS VINYL THRU OUT
1 - CABINET KITCHEN FULL DEPTH CAB OVER FRIDGE
1 - CHAIR RAIL THRU OUT
1 - TRIM AROUND ALL WINDOWS 1 3/4"
1 - MOLDING CROWN AROUND CABINETS
1 - MOLDING INTERIOR BASE 3"
1 - CEILING BEAMS W/ MATCHING WOOD IN GRAYSTONE
1 - CABINET BEDROOM STRAIGHT OHC
1 - CABINET BEDROOM CHEST OF DRAWERS
1 - CABINET BEDROOM WARDROBE(S)
2 - NIGHTSTANDS BUILT IN W/ DOOR
1 - CABINET RECESSED ENT CENTER BASE W/ ACCENT WALL
1 - WALL ACCENT COLOR PAINTED PINE
4 - ADJUSTABLE SHELVES FOR CLOSET (NOT W/D), IN HALLWAY CLOSET 

PLUMBING :
------------
1 - FAUCET LAV SINGLE HANDLE
1 - SINK LAV PORCELAIN
1 - SINK KITCHEN STAINLESS STEEL DEEP
1 - FAUCET KITCHEN UPGRADE SINGLE HANDLE HIGH RISE PULL DOWN
1 - SHOWER NEO 39" W/ CLEAR GLASS DOOR
1 - SHOWER HEAD FIXED
1 - TOILET RESIDENTIAL
1 - VALVES WATER SHUT OFF FOR STANDARD FIXTURES 

ELECTRICAL :
-------------
1 - POWER BATH VENT W/ LIGHT
1 - CEILING FAN NICKEL W/ 3 BLACK BLADES, INCLUDES REMOTE, IN LIVING ROOM
1 - AMP 50
2 - TV / CABLE JACKS
2 - RECEPT GFI EXTERIOR
1 - LIGHTS EAVE LED EXTERIOR (PAIR) FRONT OF UNIT
1 - LIGHTS LED W/ DIMMER UNDER KITCHEN OHC
3 - LIGHTS LED W/ DIMMER BOTTOM OF BR OHC
1 - LIGHTS LED W/ DIMMER INSIDE KITCHEN CORNER OHC
1 - LIGHTS LED IN CEILING
1 - LIGHT PORCH BRONZE
1 - TV BRACKET WALL MOUNT FULL MOTION 32"-50" UP TO 80#
1 - CO DETECTOR (US)
1 - LP GAS DETECTOR (US) 

APPLIANCE
-------------
1 - FIREPLACE ELECTRIC DIMPLEX W/ REMOTE
1 - FURNACE 40,000 BTU UNDERCOUNTER
1 - A/C BASEMENT HIGH OUTPUT COLEMAN
1 - REFRIGERATOR FROST FREE 18 C.F. BLACK
1 - MICROWAVE SPACEMAKER 30" BLACK
1 - MICROWAVE VENT THRU WALL
1 - RANGE GAS DELUXE W/ ELECTRIC IGNITION BLACK
1 - WATER HEATER ELECTRIC 20 GAL W/ INSULATED DOOR
1 - WATER HEATER LIGHTED SWITCH

FURNITURE
-------------
1 - SOFA HIDE-A-BED QUEEN (76159)
1 - RECLINER (10355R)
1 - KITCHEN ISLAND MOVABLE W/ 4 SWIVEL (NO BACK) BAR STOOLS
1 - BED PILLOWTOP QUEEN W/ STD FRAME (60X80)
1 - BEDSPREAD

INTERIOR FURNISHINGS
---------------------------
1 - DRAPE PATIO DOOR
1 - DRAPE SIDE PANEL ACCENT
1 - BLIND FAUX WOOD WHITE

EXTERIOR FURNISHINGS
---------------------------
1 - SIDING VINYL UPGRADE SHAMROCK
1 - SHINGLES RESIDENTIAL 25 YEAR WARRANTY DUAL GRAY
1 - WINTERGUARD ROOF UNDERLAYMENT 

repraH/Stock #6086