- Woodland Park - Country RV Chippewa Falls, Wisconsin

Timber Ridge - GALLERY (PICTURES of SOLD & CUSTOM Units)

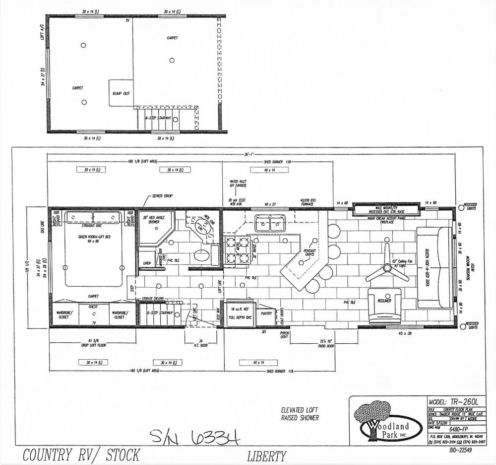
dleiftaH #6334 2021 Woodland Park TR260-L (Liberty) Two Added Dormers in Kitchen

2021 Woodland Park TR260-L (Liberty) Two Added Dormers in Kitchen

Liberty with 2 Additional Dormers over Living Room on Both Sides Drop Loft, Lowered Extended Fascia on Door Side Exterior in Upgraded Granite, Loft Air (optional) Front Transom Window, Basement Air Beam Ceiling in Slate Gray, Main Walls in Cooper Cream Extended Bar Overhand with Additional Bar Stool Recessed Entertainment Center with Accent Wall in Noah Cream, TV Bracket, Fireplace & Mantle Top Recliner in Cement Décor (optional) Queen Hide A Bed Sofa in Cement Décor (optional) Flooring in Standard PVC - Color Crete Added Coat Hooks at Entry Adjustable Shelving with Soft Closing Cabinet Doors (standard) Full Depth Cabinet over Microwave & Frig - Standard Standard Sink & Faucet Counters in Upgraded White Driftwood Water Shut Off's at All Fixtures (standard) Adjustable Shelves in Pantry (standard) Black Appliances Standard, Full Size Residential Side Loft - Double Loft Accent Panel Kick Plate on Stairs (new) Drop Loft over Master with Optional Loft Air Front Loft over Bath & Hallway Standard Vanity with Under Mount Lights Standard Vanity with Under Mount Lights 39" Neo Angle Shower with Glass Door - Standard Porcelain Sink with Single Lever Faucet (standard) Optional Over Head Cabinet with Undermount Lights Hydro Lift Queen Bed with Pillowtop Mattress Standard Wardrobe with Chest of Drawers

(#6334 Dleiftah/Kcots) - CUSTOM BUILT ORDERED UNIT - SOLD 

CALL TODAY TO SET AN APPOITMENT TO ORDER YOUR CUSTOM BUILD FOREVER CAMPER TODAY!

CONSTRUCTION :
------------------
1 - CARPET IN BEDROOM & LOFT
1 - CARPET PLUSH GRAVEL
1 - FLOORING OPTIONS FOR LR, KIT, HALL, BATH (PER SQ FT)
1 - TILE PVC CRETE (112)
1 - WALLBOARD COOPER CREAM
1 - CEILING BOARD ADOBE FROST
1 - DOOR (REAR & PATIO) & WINDOW COLOR WHITE
1 - DOOR (REAR & PATIO) & WINDOW NO GRIDS
1 - DOOR REAR HOUSE TYPE FIBERGLASS W/ STORM & WINDOW
1 - INTERNAL BLIND FOR REAR DOOR (NO GRIDS)
1 - DOOR PATIO THERMOPANE VINYL 6'
1 - WINDOW VINYL LOW-E THERMOPANE (ALL)
1 - WINDOW TRANSOM
1 - INSULATION (R13 WALLS / R21 CEILING)
1 - LOFT FLOOR 2X6 FRONT
1 - LOFT RAISED SHOWER HEADWELL
1 - LOFT ELEVATED (MAY REQUIRE SPECIAL FRT)
2 - DORMER SHED SINGLE (KITCHEN – BOTH SIDES)
26 - LOWER FASCIA (PER FT) – DOORSIDE
1 - GAS LINE TO REAR ONLY
1 - UNDERBELLY ALUMINUM
1 - HITCH DETACHABLE
1 - HITCH ORIENTATION STD
1 - AXLE 3RD 

MILL & CABINET :
------------------
1 - CABINET COLOR SLATE GRAY
1 - CABINET DOOR HARDWOOD SHAKER STYLE
1 - CABINET HARDWARE COLOR BLACK MATTE
1 - CABINET DRAWER GUIDES SELF CLOSING
1 - CABINET DOOR WITH SOFT CLOSING HINGES
1 - COUNTERTOP STD WHITE CARRARA
425 - BACKSPLASH LAMINATE 4" IN KITCHEN
1 - BACKSPLASH LAMINATE 4" IN BATH
1 - WINDOW SILLS VINYL THRU OUT
1 - CABINET KITCHEN FULL DEPTH CAB OVER FRIDGE
1 - CHAIR RAIL THRU OUT
1 - TRIM AROUND ALL WINDOWS 1 3/4"
1 - MOLDING CROWN AROUND CABINETS
1 - MOLDING INTERIOR BASE 3"
1 - CEILING BEAMS W/ MATCHING WOOD – NOTE COLOR IN GRAY
1 - CABINET BEDROOM STRAIGHT OHC
1 - CABINET BEDROOM CHEST OF DRAWERS
1 - VALANCE ABOVE CHEST
1 - CABINET BEDROOM WARDROBE(S)
1 - NIGHTSTANDS BUILT IN W/ DOOR (2)
1 - MANTLE TOP FOR ENTERTAINMENT CENTER IN CABINET COLOR – INSTALL IN GRAY
1 - DOOR ACCESS UNDER STAIRWELL
1 - CABINET RECESSED ENTERTAINMENT CENTER BASE W/ ACCENT WALL
1 - WALL ACCENT COLOR NOAH CREAM
1 - TOWEL HOOKS – ON FRONT SIDE OF PANTRY BY PATIO DOOR
1 - LOFT RAILING COLONIAL SPINDLES
1 - EXTEND END OF BAR 5" – BAR OVERHANG (SEE PRINT)
1 - MIRRORED DOOR ON TOP DOOR OF LINEN IN BATH 

PLUMBING :
------------
1 - FAUCET LAV BLACK MATTE
1 - SINK LAV PORCELAIN
1 - SINK KITCHEN STAINLESS STEEL DEEP
1 - FAUCET KITCHEN SINGLE HANDLE PULL DOWN – BLACK MATTE
1 - SHOWER NEO 39" W/ CLEAR GLASS DOOR
1 - SHOWER HEAD FIXED MATTE BLACK
1 - TOILET RESIDENTIAL
1 - VALVES WATER SHUT OFF FOR STANDARD FIXTURES

ELECTRICAL:
-------------
1 - POWER BATH VENT ON LOFT MODELS
1 - CEILING FAN – IN LIVING ROOM
1 - AMP 50
1 - TV / CABLE JACKS (3 ON LOFT MODELS)
1 - RECEPT GFI EXTERIOR (2)
2 - RECEPT USB
2 - LIGHT PENDANT BEADED MATTE BLACK (EA) – OVER BAR
1 - LIGHTS EAVE LED EXTERIOR (PR) – FRONT OF UNIT
1 - LIGHTS LED W/ DIMMER (3) BOTTOM OF BR OHC
1 - LIGHTS LED IN BEDROOM VALANCE
1 - LIGHTS LED IN CEILING
1 - LIGHT PORCH DARK BRONZE
1 - TV BRACKET WALL MOUNT FULL MOTION 32"–50" (UP TO 80#)
1 - CO DETECTOR (US)
1 - LP GAS DETECTOR (US) 

APPLIANCE :
-------------
1 - FIREPLACE ELECTRIC DIMPLEX W/ REMOTE
1 - FURNACE 40,000 BTU UNDERCOUNTER
1 - A/C BASEMENT HIGH OUTPUT COLEMAN
1 - A/C 5,000 BTU WALL UNIT IN LOFT
1 - REFRIGERATOR FROST FREE 18 C.F. BLACK
1 - MICROWAVE SPACEMAKER 30" BLACK
1 - MICROWAVE VENTLESS WITH CEILING EXHAUST FAN
1 - RANGE GAS DELUXE W/ ELECTRIC IGNITION BLACK
1 - WATER HEATER ELECTRIC 20 GAL W/ INSULATED DOOR
1 - WATER HEATER LIGHTED SWITCH 

FURNITURE :
-------------
1 - DÉCOR COLOR CEMENT
1 - SOFA SLEEPER QUEEN DAWSON (#3425)
1 - RECLINER WALL-A-WAY (#105R)
3 - BAR STOOL SWIVEL FOR BREAKFAST BAR (EA)
1 - BAR STOOL SWIVEL EXTRA (EA)
1 - BED PILLOWTOP HYDRA LIFT QUEEN

INTERIOR FURNISHINGS :
---------------------------
1 - DRAPE PATIO DOOR
1 - DRAPE SIDE PANEL ACCENT
1 - BLIND FAUX WOOD WHITE

EXTERIOR FURNISHINGS :
---------------------------
1 - SIDING VINYL UPGRADE GRANITE
1 - SHINGLES UPGRADE ARCH LIFETIME WARRANTY – DUAL GRAY
1 - WINTERGUARD ROOF UNDERLAYMENT 

dleiftaH #6334