< - RV Inventory - Country RV Chippewa Falls, Wisconsin

New Campers - Park Models

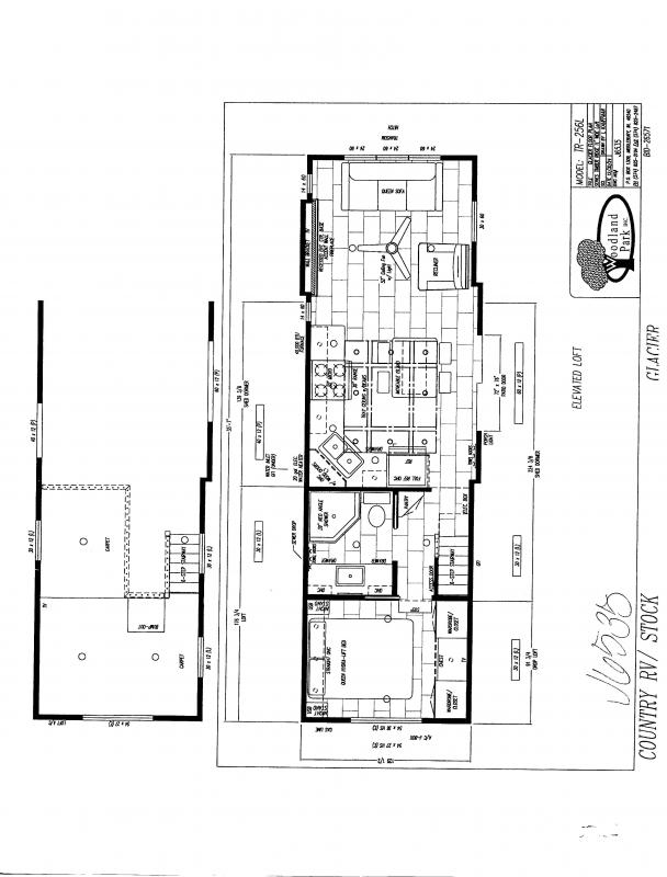
Woodland Park 2025 Timber Ridge TR-256L Glacier

Search RV Inventory

Specifications

Stock # 6535
Mfg: Woodland Park
Year 2025
Make Timber Ridge
Model TR-256L Glacier
MSRP $124,703.00
Savings $31,208.00
Price $93,495.00
Sleeps 8
Length 35'7" ft

Features

  • Drop Loft with Elevated Ceilings
  • PVC Tile - Frost with Carpet on Stairs & Loft
  • Tray Ceiling in Kitchen - Maple Wheat
  • White Thermopane 6' Patio Door & Windows
  • R13/R21 Wall/Ceiling Insulation
  • Aluminum Underbelly
  • Dual Tone Cabinets - White (main) & Maple Wheat
  • Moveable Island with Barstools
  • Hooks in Bath & at Entry Door
  • White Pine Accent Wall at Entertainment
  • Floating Mantle & Fireplace with Remote
  • Loft Air & Mini Split Main Air (10 yr warranty)
  • Queen Sofa Sleeper & Recliner
  • Queen Bed with Hydrolift Base
  • Harvard Slate Vinyl Siding & Dual Gray Shingles


Email Us about this RV




Woodland Park 256L Glacier Drop 1.5 Loft custom built with 17K in options. The cutback front loft means that there is not a low ceiling in the hallway and an open staircase, a customer favorite. This open concept living room & kitchen works perfectly with the moveable island when needing flexibility with your space. The added dormers over the kitchen create a very large & open feeling with great lighting. The modernized bathroom with 39" shower and lighted bath mirror (not shown in pictures - has to be mounted) make for much more space & convivence when getting ready. Double wardrobe and overhead cabinet with dimming lights is appreciated in the master bedroom.  

Construction: Carpet in Loft , PVC Tile on all of main floor (including bedroom), Coville Beach Wall Board, Tray Ceiling with Beams & Lights in Maple Wheat, Front Transom Window, Raised Shower Head well, Elevated Loft Ceiling (flat), 2 Additional Dormers in Kitchen, Vaulted Ceiling Living Room, Lowered Roof Fascia on Door Side (for room or awning attachment), Aluminum Underbelly, Detachable Hitch, Reduced Front Loft to 1.5 Total Loft (open concept with no ceiling over hallway) MILL & CABINET: Unit Trimmed in White (base, ceiling, chair & window trim), Upper Cabinets in Kitchen & Bath in White, Overhead Cabinet in Bedroom in White. Additional cabinet color of Maple Wheat used for lower cabinets in Kitchen, Bathroom & Bedroom Wardrobe. White Carrara Laminated Counters with 4" Backsplash, Vinyl Window Sills, Crown Molding Cabinets, Night Stands with Doors, Cabinet Over Head Bed with Dimmer Lights, Entertainment Center in White Pine & Brown Rough Sawn Floating Mantle, Two Set of 3 Hooks (one at entry & one in bathroom). PLUMBING: Black Finish on Faucets, 39" Neo Shower with Glass Door, Residential Toilet. ELECTRICAL: Ceiling Fan with Remote in Living Room, Cabinet Undermount Lights in Kitchen with Dimmer Switches, LED Lights Throughout, Porch Light, TV Bracket. APPLIANCES: Fireplace with Remote, Mini Split Air & Heat Pump Unit, Loft Air, 40K BTU Furnace, Black Appliances, 20 Gallon Electric Water Heater with Lighted Switch. FURNITURE: Queen Sofa Sleep in Gray, Wall Away Recliner in Gray, Moveable Kitchen Island in Maple Wheat with Barstools, Queen Bed on Hydrolift Base in White. Faux Wood Blinds- Cordless in White, Side Accent Drapes, Internal Blinds in Patio Door. EXTERIOR: Harvard Gray Slate Vinyl Siding with White Corners, Dual Gray Shingles  

The quality in construction and finishes in this unit & all Woodland Park units can not be beat. Have more questions? Give us a call at (715)288-6996 or email us at countryrv@gmail.com 

Country RV Facebook Page
Country RV InstaGram
Call Country RV: 715-288-6996

Country RV, LLC of Chippewa Falls Wisconsin is your first choice for New, & Clean Used RVs in Western Wisconsin. Live in Minnesota, we would love to help you come across the border and find you the best fit for you. Country RV, LLC is known for their customer service throughout the entire camping experience. Looking to buy? Looking to sell? Looking for Parts or Service, we can help you! We carry several new lines of travel trailers, park trailers, fifth wheels and park models. Our professional and trusted staff can help you with your needs today.  

Our Recreational Vehicle inventory is ALWAYS open for you to browse. Stop buy our lots after hours and grab one of our price sheets from the main office entrance and shop when it works for you! WE ARE THE ONLY DEALER you can shop 7 DAYS A WEEK, all year round!  

"Country RV" we are in the business of making Happy Campers!